VERKAUFT :ruhig gelegene Doppelhaushälfte in Sackgassenlage in Marienheide
51709 Marienheide, Doppelhaushälfte zum Kauf
Objektdaten
-
Objekt IDGBI2465
-
ObjekttypenDoppelhaushälfte, Haus
-
Adresse51709 Marienheide
-
Etagen im Haus2
-
Wohnfläche ca.128 m²
-
Grundstück ca.513 m²
-
Zimmer5
-
Badezimmer1
-
Separate WC1
-
Balkone1
-
Terrassen1
-
HeizungsartZentralheizung
-
Wesentlicher EnergieträgerGas
-
Baujahr1963
-
Zustandrenovierungsbedürftig
-
Stellplätze gesamt1
-
Garage1 Stellplatz
-
Käuferprovision2,98% zzgl. MwSt.
-
Kaufpreis260.000 EUR
Ausstattung / Merkmale
- ✓ Balkon
- ✓ Keller
- ✓ Separates WC
- ✓ Terrasse
Objektbeschreibung
Beschreibung
Die ruhig gelegene ( Sackgassenlage) Doppelhaushälfte verfügt seitlich über eine Einfahrt zum Hof und zur Garage.
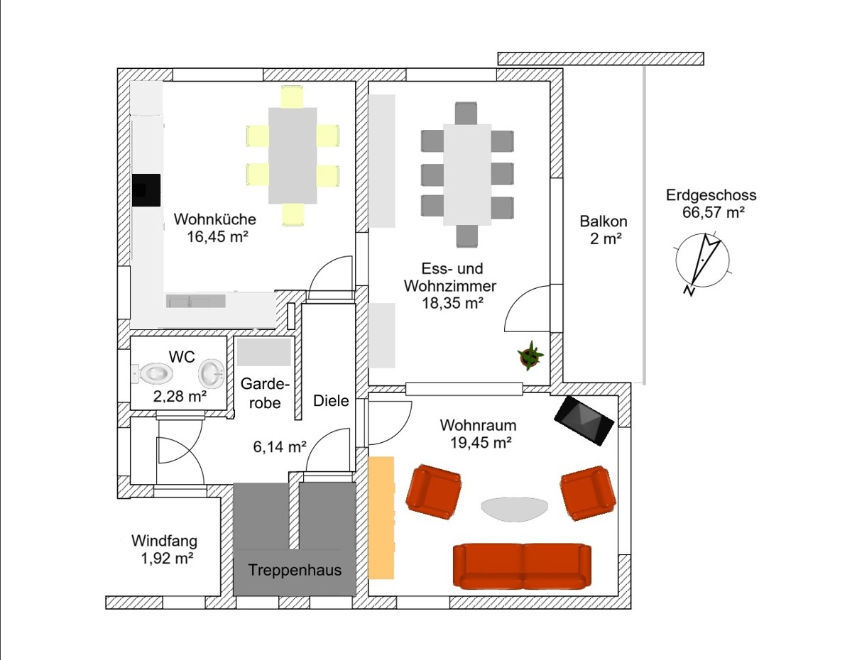
Durch den überdachten Eingangsbereich gelangt man ins Erdgeschoss. Hier befinden sich ein Gäste WC, eine sehr große und geräumige Küche, ein Esszimmer mit Durchgang in das Wohnzimmer.
Vom Esszimmer aus gelangt man auf den Balkon mit wunderbarem Ausblick.
Die Fenster sind noch einfach verglast und müssten erneuert werden.
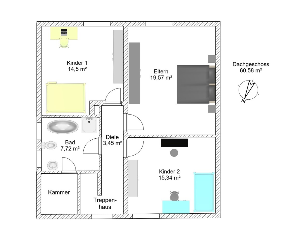
Über ein geschmackvoll gestaltetes Treppenhaus mit schönen Rundfenstern gelangt man ins Obergeschoss. Dieses ist mit einem großen Badezimmer mit Dusche und Badewanne und kleiner Abstellkammer und drei weiteren Zimmern ausgestattet. Die drei Zimmer bieten verschiedenste Nutzungsmöglichkeiten ( Schlafzimmer, Kinderzimmer, Büro etc.).
Vom Obergeschoss aus gelangt man auf den Speicher, der auch Stauraum bietet.
Das Objekt ist voll unterkellert. Der Keller verfügt über einen Heizungsraum, sowie zwei weitere großzügige Räume, die jede Menge Stauraum bieten.
Vom Keller aus gelangt man ebenfalls auf den Hof, die Terrasse und den kleinen Garten.
Das Dach ist vor ca. 14 Jahren erneuert worden.
Die Lage des Objektes ist ruhig, dennoch ist man in wenigen Autominuten in der Stadt. Hier findet man alles für den täglichen Bedarf. Die Freizeitmöglichkeiten runden dieses Angebot ab.
Ausstattung
- Balkon
- Terrasse
- Garage
Lage
Marienheide ist ein attraktiver Wohnort, ein leistungsstarker Wirtschaftsstandort, ein Ort der Erholung, ein Ort voller Tradition und durch seine beiden Talsperren ein beliebtes Freizeitziel.
Die Gemeinde ist rund 55 Quadratkilometer groß und neben dem Hauptort Marienheide gehören 51 weitere Ortschaften zur Gemeinde.
Eingebettet in eine abwechslungsreiche Landschaft mit hoher Luftreinheit und mildem, angenehmen Reizklima, besteht Marienheide ( 256 bis 506 Meter über NN) zu rund 86% des Gemeindegebietes aus Wäldern, Grünland und Gewässern.
Mit rund 14.000 Einwohnern liegt die Gemeinde Marienheide inmitten des Bergischen Landes, etwa 50 Kilometer entfernt von Köln.
Kindergarten 3 km | Grundschule 3 km | Realschule 3 km | Gymnasium 3 km | Autobahn 10 km | Zentrum 3 km
Die ungefähre Position der Immobilie auf Google Maps ansehen (Link auf externe Website)



























